Venduto

Centocelle – Locale commerciale uso investimento


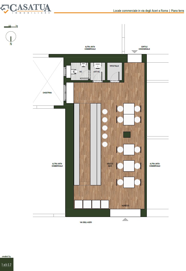
[ipano id=101]

 

Negozio in Vendita

Centocelle - Proponiamo in vendita un locale commerciale, categoria catastale C/1, situato in una posizione privilegiata, a Centolle, precisamente in Via degli Aceri. Il locale gode di un'ottima visibilità grazie al suo affaccio diretto su strada, garantendo un flusso costante di potenziale clientela.
Con una superficie di 60 mq, l'immobile è adibito e locato come bar da decenni, dimostrando la sua idoneità e il successo per questa tipologia di attività. Questa lunga storicità come bar ne conferma la funzionalità e ha permesso di avere una clientela consolidata nel tempo. A completare la proprietà, una cantina di ulteriori 20 mq offre spazio aggiuntivo utile per magazzino, deposito o altre esigenze dell'attività.
Attualmente, il locale genera una rendita mensile di 900 euro, rappresentando un'ottima opportunità di investimento per chi cerca un'attività già avviata e con un reddito stabile essendo locato da decenni allo stesso conduttore. L’attuale contratto di locazione ha scadenza nel 2030.
Non perdere l'occasione di visitare questa imperdibile soluzione!
Contattaci oggi stesso per maggiori informazioni o per fissare un appuntamento.

DETTAGLI IMMOBILE:


PREZZO: € 138.000,00

SPESE CONDOMINIO: 50 €/mese

RENDITA CATASTALE: 1965,00 €

TIPO PROPRIETÀ: Classe immobile media

SUPERFICIE: 60 mq

LOCALI e PIANO: Sala, cucina, magazzino, T

DISPONIBILITÀ: Locato fino al 2030

BOX E POSTO AUTO: No

CARATTERISTICHE: Fibra ottica, Esposizione esterna, Cantina, Arredato

Efficienza energetica:


Anno di costruzione: 1976

Stato: Buono

Riscaldamento: Autonomo, ad aria

Condizionatore: Si

Classe energetica: G

indicatore di prestazione energetica:



L’immobile si trova qui: